Space Tank Studio
Space overview
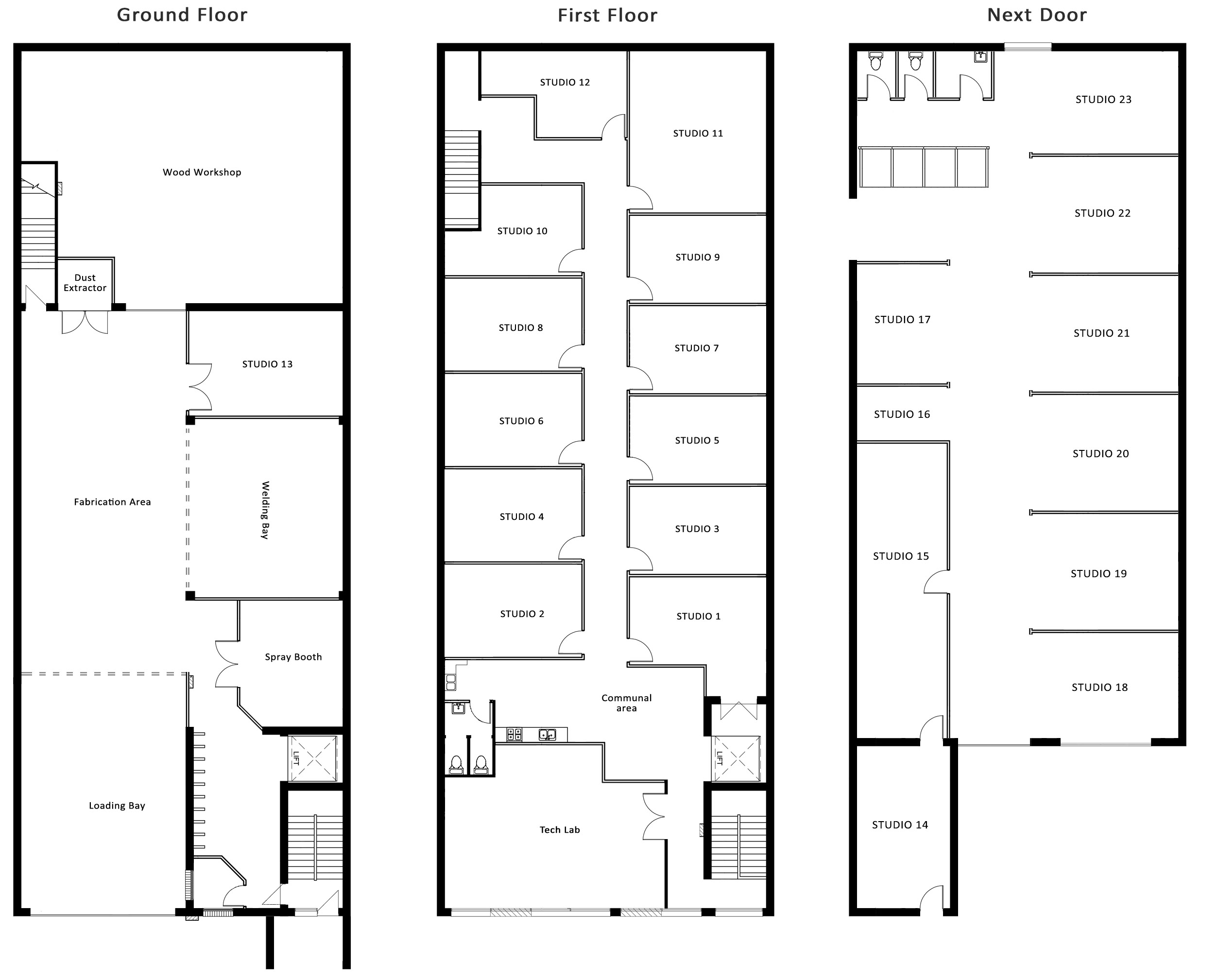
Space Tank is Melbourne’s premier business makerspace powering creative manufacturers, innovators and product designers to build successful companies. Studios for rent, access to manufacturing machinery and prototyping technologies, co-working space and business networks.
Purpose built maker studio and factory environment including large sky lights, air conditioning and compressed air outlets in all studios. All workshop areas and machinery have OH+S work safety signage, hanging GPO's, fire safety and extraction equipment.
Coburg North is becoming the place to be for creative practitioners. Enjoy affordable spaces, a diverse community of like minded people and proximity to supporting industries.
Features and facilities
Accessibility features
- Accessible public transport
- Accessible parking
- Accessible path to entrance from parking or public transport
- Accessible toilets
- Quiet areas or spaces
General features
- Non-gendered toilets
- CCTV Monitoring
- Lockable space
- Secure bike parking
- Standing height tables
- Wash up space
- 24/7 access
- Air conditioning
- Free wifi
- Fridge
- Heating
- Kitchen
- Kitchenette
- Storage
- Toilets
Specialist features
- 3 Phase / 20 Amp Outlet
- 3D printer
- Castmaking Facilities/ Foundry
- CNC-laser cutter
- Drop saw
- Engraving
- Industrial sewing machine
- Multi-process welding
- Panel saw
- Patternmaking table
- Pendant drills
- Polishing lathes
- Sewing machines
- Spray booths
- Table saw
- Thickner
- Workbenches
Technology features
- Computer lab
Access features
- Goods lift
- Double doorways
- Wide Corridors
- Trolleys
Location
Address
9
Warner Street,
Coburg North, 3058
Access Hours
Studio tenants get 24/7 access to the entire facility including all manufacturing machinery and prototyping technologies. Casual members can access the Makerspace and workshop areas during normal business hours or otherwise as per arrangement.
Space Tank is a startup and creative business ecosystem that helps young product developers and niche manufacturers grow faster than when they operate alone.
Getting here
Transport options
- Tram
Route 19 runs from Bakers Rd, North Coburg to Elizabeth Street, City. Batman railway station is on the Upfield railway line. Batman is unstaffed and is in Metcard Zones 1&2 overlap.
Parking
Parking directly out the front of Space Tank and along adjoining streets along nearby parks etc.


